Hyr lägenhet av Kalix kommun

Hej och välkommen till Kalix kommuns flerbostadsområde Tor 8. PÅ dessa sidor kan du läsa mer om lägenheterna. Besök minbostad.kalix.se för att ställa dig i vår bostadskö!
Adress
Furuhedsvägen 10, 12 och 14.
Fördelning av lägenheter
Totalt finns 30 stycken lägenheter i tre hus om två våningar var. Vardera hus har en 3:a, två 2:or och två 1:or på varje våning.
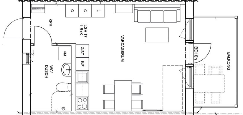
Storlek: 35 kvadratmeter.
Antal: 12 stycken.
Hyra: 5 739 kronor per månad.
▶ Videovisning av en etta i bostadsområdet Tor 8
Storlek: 55,5 kvadratmeter.
Antal: 12 stycken.
Hyra: 7 949 kronor per månad.
▶ Videovisning av en tvåa i bostadsområdet Tor 8
Storlek: 69 kvadratmeter.
Antal: 6 stycken.
Hyra: 9 398 kronor per månad.
▶ Videovisning av en trea i bostadsområdet Tor 8
Om lägenheterna och husen
Alla lägenheter har egen ingång direkt från markplan eller från loftgång. Varje lägenhet har också egen balkong samt förråd utomhus.
- 2:or och 3:or har diskmaskin, tvättmaskin och torktumlare i lägenheten
- 1:or saknar diskmaskin men har kombinerad tvätt- och torktumlare.
Till Tor 8 finns 37 parkeringsplatser, 31 med motorvärmarstolpe varav tre är handikapparkeringar. Parkeringsplatserna med motorvärmarstolpar är förberedda för elbilsladdning och uttagen monteras när behov uppstår för hyresgästen.
Pris: 200 kronor per plats och månad. Kostnad för elförbrukning tillkommer.
Registrera dig i vår avgiftsfria bostadskö
Kalix kommun har skapat portalsidan "Tor 8 – Min Bostad". Som boende eller bostadssökande kan du här logga in och göra ärenden via "Mina Sidor". Det är gratis att registrera sig och stå i bostadskön. Om vi har lediga lägenheter i Tor 8 så visas de här! Via portalen kan du även ansöka om parkeringsplats.
Du som vill kan även anmäla dig till bostadskön via blankett. Det kan då ta några dagar innan du registreras i bostadskön och börjar samla poäng. Du som vill skicka in en blankett – men saknar möjlighet att skriva ut själv – kan beställa en pappersblankett via Kalix kommuns växel, 0923-650 00.
Vi registrerar dina personuppgifter samt datum för anmälan. Du samlar sedan en (1) köpoäng per dag från dagen du anmäler dig som bostadssökande (när du sedan har bostad via Kalix kommun samlar du 1,5 poäng per dag). Den med flest köpoäng erbjuds lägenhetskontraktet.
Kontaktuppgifter
För frågor om projektet och fastigheten Tor 8 kontakta Camilla Sandin, fastighetschef Kalix kommun, via camilla.sandin@kalix.se eller 0923-65042.
För frågor gällande bostadskö, köpoäng och felanmälan, kontakta Kalixbo via info@kalixbo.se eller 0923-189 00.